mittelalterarchaeologie.de (jpg) Fenster schließen
Rainer Atzbach, Die mittelalterlichen Funde und Befunde der Ausgrabung Hannover-Bohlendamm

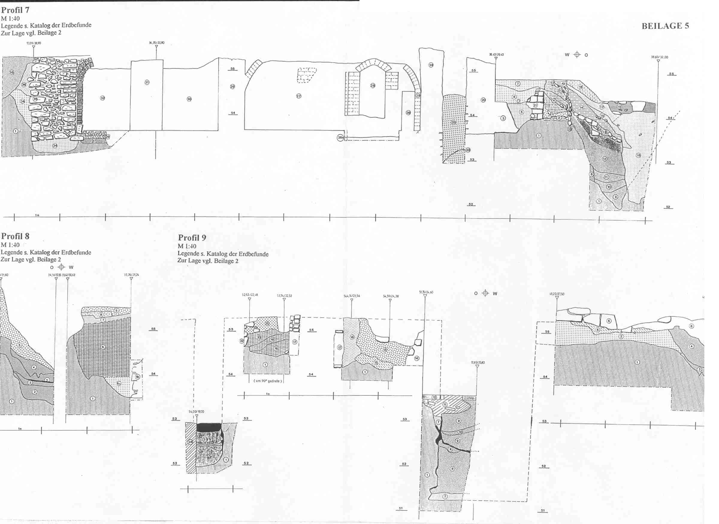
Beilage 5. Für eine vergrößerte Ansicht auf das Bild klicken.

CD-ROM mit verbesserter Abbildungsqualität bestellen (10.- €)

Abb. 32